
“Two is Better than One” Contemporary Kitchen, Laundry, and Bathroom Remodel
Before + After
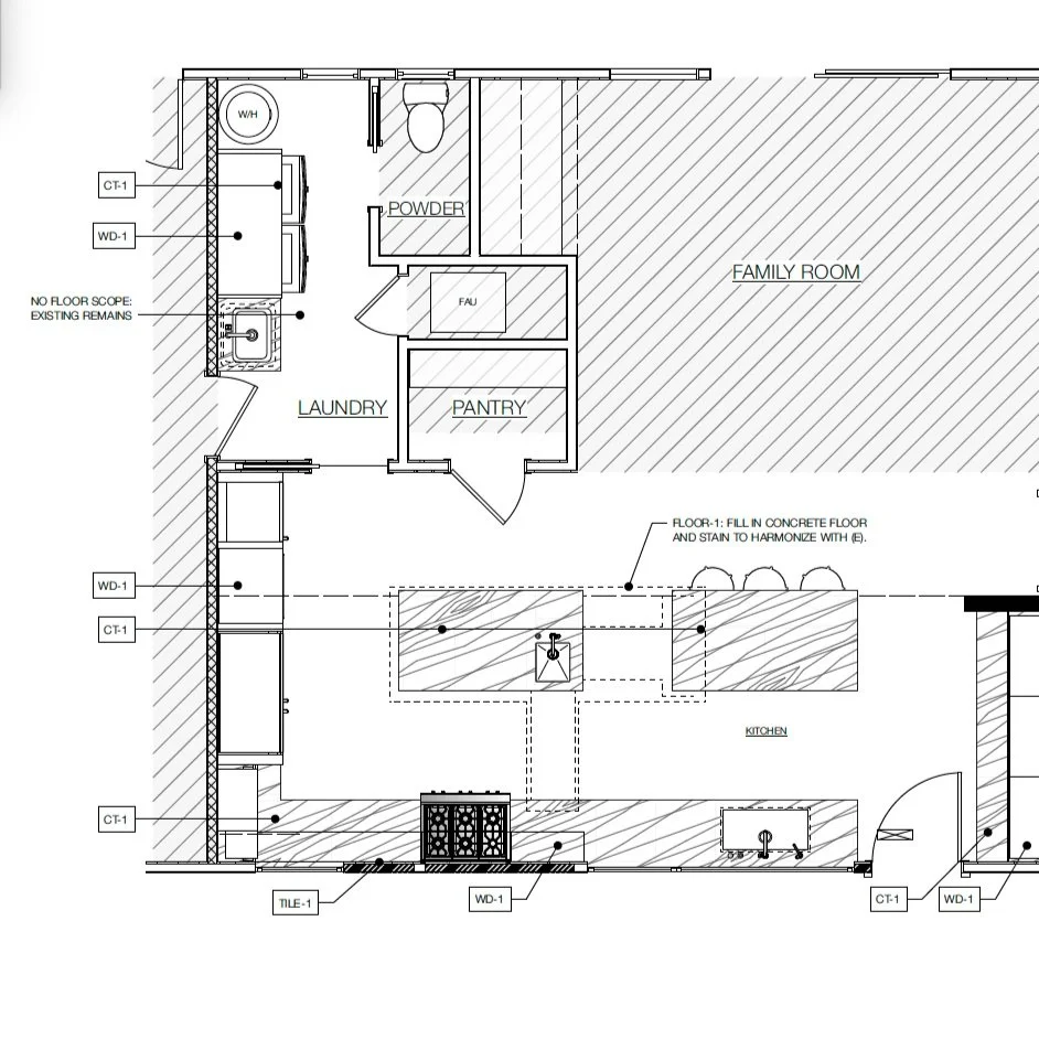
The Program
This contemporary remodel reimagines the heart of the home with a design that blends functionality, style, and light-filled spaces. Featuring dual kitchen islands, sleek rift white oak cabinetry, and premium Wolf and Sub-Zero appliances, the kitchen is perfect for our clients who are avid cooks and hosts. With open sightlines, polished concrete floors, and a seamless connection to the dining area, this transformation creates a sophisticated yet welcoming environment for daily living and entertaining.

Double the Islands, Double the Function
The crown jewel(s) of this kitchen are the striking double islands which boast beauty and so many wonderful features. One island has dedicated bar seating which looks out to the front yard through the new window, perfect for casual gatherings or morning coffee. The other island is dedicated to increased culinary functionality, housing multiple appliances, ample storage, and a prep sink. Both islands have abundant pull-out storage, perfect for storing all regularly used dishware, cookware, and linens.
Thanks to the double island, the new kitchen has storage capacity most only dream of, and ample countertop space. Talk about a dream come true!
An Elevated Hall Bath
The remodeled guest bathroom transformed what was once a purely functional, often overlooked utility space into a polished, welcoming retreat that reflects our client’s personal style. It's no longer a room they avoid, but one they're proud to show off and enjoy themselves.
This updated hall bathroom complements the kitchen’s aesthetic with rift white oak cabinetry, a spacious double vanity, and a walk-in shower with floor-to-ceiling large-format tile. By replacing the tub-shower combo with a low-curb walk-in shower, the new shower is much more accessible for guests of all ages. The remodeled vanity utilizes the length of the previous vanity to add a second sink, all new lighting, and rectangular wall mirrors which further define the double vanity. Contemporary finishes ensure the bathroom is inviting and filled with natural light.
Designing “Two is Better than One”
Key floor plan changes dramatically transformed the look and feel of this interior without changing the size of any of the rooms. The renderings our designers made throughout the design process helped our clients visualize the changes and impact of the design choices they were deciding on.
Given double kitchen islands are not a commonplace feature, the renderings aided our clients in contextualizing how the double islands would fit in the flow of their floor plan.
“MAK Design and Build did a major remodel for us: kitchen, bathrooms and laundry room. We are over-the-top thrilled with the work they did. Working with them was truly a pleasure on every level. They made it as stress-free as possible for our family as they guided us through the design process, then demo and then bringing the beautiful designs to life. Everyone we worked with was very friendly and excellent at communicating what was going to happen next. We recommend MAK with no reservations, they are amazing.”
+ Sarah H.
+ Album










